Appartement à MAINVILLIERS, 28300 - 3 pièces 69m²

T3 rénové avec loggia, cave et box – prêt à vivre !

Sous compromis
Description du bien

Situé à proximité immédiate des commodités :
- Écoles de la crèche au collège à moins de 10 min à pied
- Commerces, alimentation, médecins à 5 à 10 min à pied
- Bus au pied de la résidence
- Gare de Chartres à 15 min à pied
- Parcs et hôpital à moins de 5 min en voiture

Dans une résidence bien entretenue, aux parties communes en bon état (aucun travaux votés, DPE immeuble : D).
Inclus dans les charges mensuelles (environ 224 €/mois selon consommation réelle) :
- Chauffage collectif avec répartiteur individuel
- Eau chaude et eau froide
- Entretien des communs

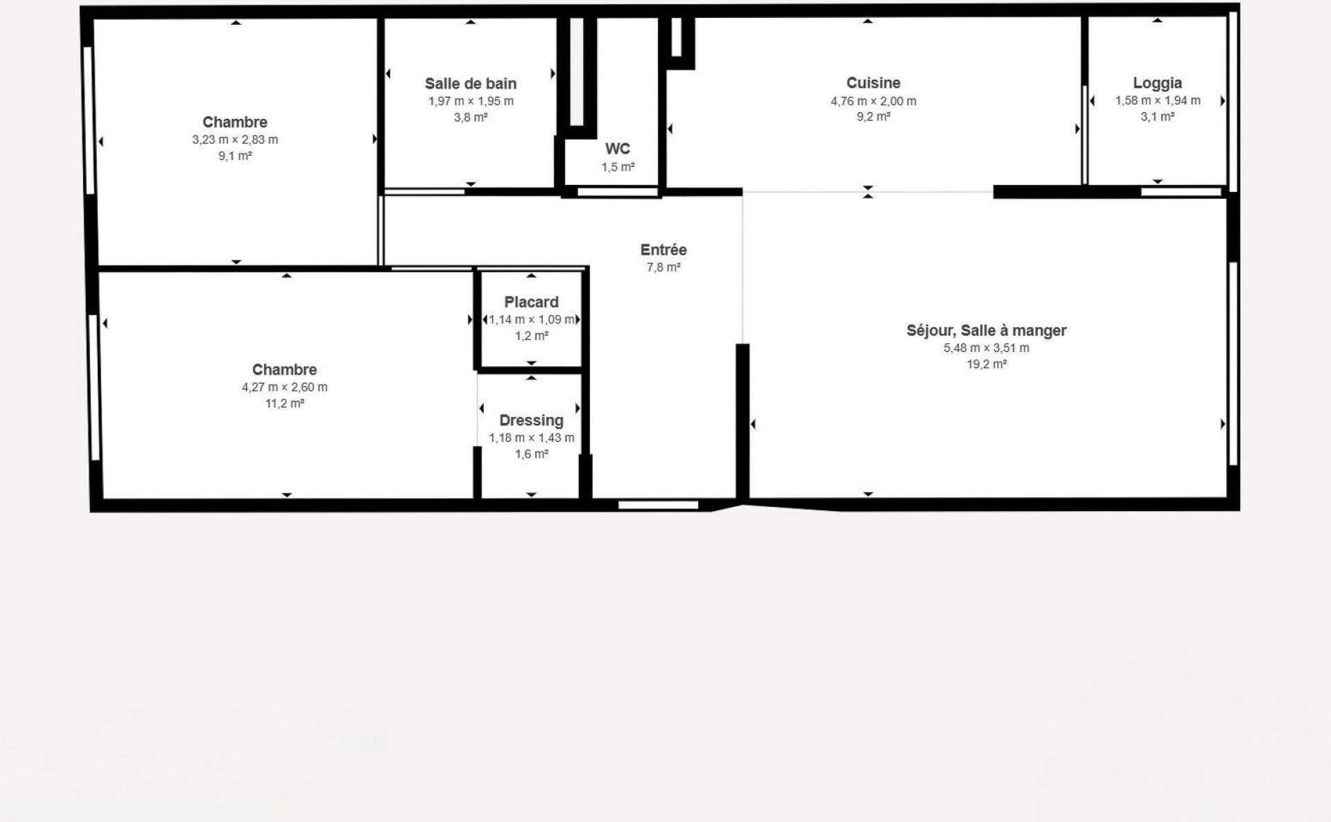
Cet appartement traversant (exposition nord-sud), au 2ème étage sans ascenseur, a été entièrement rénové avec goût et matériaux de qualité. Il se compose de :
- Entrée avec placards
- Séjour lumineux de 19 m²
- Cuisine ouverte aménagée et équipée
- Deux chambres confortables dont une avec dressing
- Salle d’eau moderne
- WC indépendant suspendu avec lave-mains
- Loggia fermée utilisable été comme hiver

Annexes et confort :
- Cave privative de 3 m²
- Box fermé + une place extérieure devant le box
- Fibre optique, internet haut débit
- Aucun travaux à prévoir : installez-vous directement !

Contactez-moi 7j/7 pour plus d’infos ou une visite. Une belle opportunité à ne pas manquer !

Le bien comprend 4 lots, et il est situé dans une copropriété de 122 lots (les charges courantes annuelles moyennes de copropriété sont de 2688 € et le syndicat des copropriétaires ne fait pas l'objet d'une procédure citée à l'article L. 721-1 du code de la construction et de l'habitation).

Les informations sur les risques auxquels ce bien est exposé sont disponibles sur le site Géorisques : www.georisques.gouv.fr

Prix de vente : 145 000 €
Honoraires charge vendeur

Contactez votre consultant megAgence : Dany LE BLANC, Tél. : 0620889248, E-mail : dany.leblanc@megagence.com - EI - Agent commercial immatriculé au RSAC de CHARTRES sous le numéro 889 071 718

Diagnostics de performance énergétique
Bilan énergétique
Bilan énergétique
Estimation des coûts annuels d'énergie du logement (année de référence : 2021)
entre 1031€ et 1395€ par an
Caractéristiques
  • Référence : 189011
  • Surface : 69m²
  • Nombre de pièces : 3
  • Nombre de chambres : 2
  • Etage : 2
  • Année de construction : 1974
  • Salles de bain : 1
  • WC : 1
  • Cave : 1
  • Nombre de parkings : 2
  • Garage / Parking
Autour de ce bien

Découvrez les transports, écoles, hopitaux, commerces, services... à proximité

145 000
  • TYPEAppartement
  • PIÈCES 3
  • CHAMBRES 2
  • SURFACE69 m²
  • REF189011
VOTRE CONSULTANT MEGAGENCE
Consultant en charge
Consultant indépendant - MAINVILLIERS (28300)
Ce bien vous intéresse ?