Maison à MARCILLY-LE-HAYER, 10290 - 7 pièces 166m²
MAISON DE CAMPAGNE 7 PIECES
MARICILLY-LE-HAYER – UN HAVRE DE PAIX AU CŒUR DE LA NATURE!
Deux maisons indépendantes, d'une surface habitable totale de 166 m²
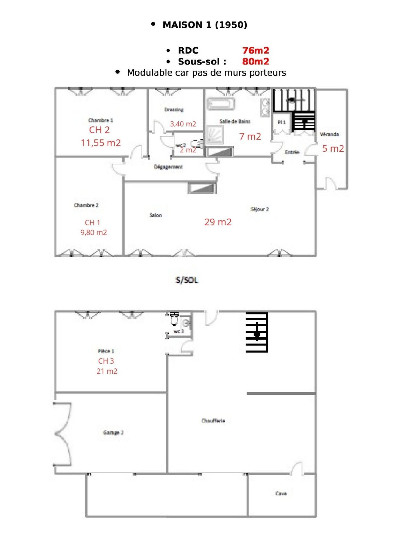
Maison 1 - 1967: 70 m² sur sous-sol
Maison 2 - 2008 : 96 m²
Piscine couverte (9,5 x 4,5 m)
Sauna privé de 20 m²
Grand bassin naturel et rivière de 1ère catégorie dans la propriété
Dépendance aménageable de 20m²
Deux grandes terrasses (30 m² et 52 m²) pour vos repas en plein air.
Un grand garage de 140 m², sur 2 niveaux pouvant être aménageable avec appentis de
18 m²
Poêle à bois et climatisation réversible 2024 classée A chaud et froid
Gaz individuel pour le piano de cuisson
Toitures en excellent état dont une sous garantie décennale
Le salon cathédrale idéal pour vos réceptions ou moments en famille.
A deux pas du centre ville (commerce, école primaire, poste, gendarmerie…)
A 20 km de Romilly-sur-Seine et Nogent-sur-Seine. Le tout sur un terrain clos de 8659m².
Les informations sur les risques auxquels ce bien est exposé sont disponibles sur le site Géorisques : www.georisques.gouv.fr
Prix de vente : 279 000 €
Honoraires charge vendeur
Contactez votre consultant megAgence : Vanessa TAPIA, Tél. : 0623768300, E-mail : vanessa.tapia@megagence.com - EI - Agent commercial immatriculé au RSAC de TROYES sous le numéro 800 703 894
- Référence : 195169
- Surface : 166m²
- Surface Terrain : 8659m²
- Nombre de pièces : 7
- Nombre de chambres : 3
- Année de construction : 1967
- Salles de bain : 1
- WC : 2
- Jardin
Découvrez les transports, écoles, hopitaux, commerces, services... à proximité
Notre sélection pour vous
-
ExclusivitéTerrain 5165m²
10100 - Romilly-Sur-Seine Offre Immobilière Réf. 194929 Prix : 78 000 € Détail du bien -
Immeuble 170m²
10100 - Romilly-Sur-Seine Offre Immobilière Réf. 194431 Prix : 128 000 € Détail du bien -
ExclusivitéMaison 5 pièces 109m²
10100 - Romilly-Sur-Seine Offre Immobilière Réf. 194455 Prix : 109 000 € Détail du bien -
Maison 5 pièces 105m²
10100 - Romilly-Sur-Seine Offre Immobilière Réf. 193952 Prix : 210 000 € Détail du bien