Immeuble à CLEGUEREC, 56480 - 5 pièces 189m²
Immeuble avec rapport locatif Idéal Investisseurs !!
Situé dans la charmante ville de Cléguérec (56480), cet immeuble de rapport locatif se distingue par son emplacement paisible et son ambiance authentique bretonne. La ville offre un cadre de vie agréable, à proximité de la nature avec ses espaces verts et ses sentiers de randonnée. Vous pourrez profiter de la quiétude de la campagne tout en étant à quelques pas des commodités essentielles telles que les commerces locaux, les écoles et les transports en commun.
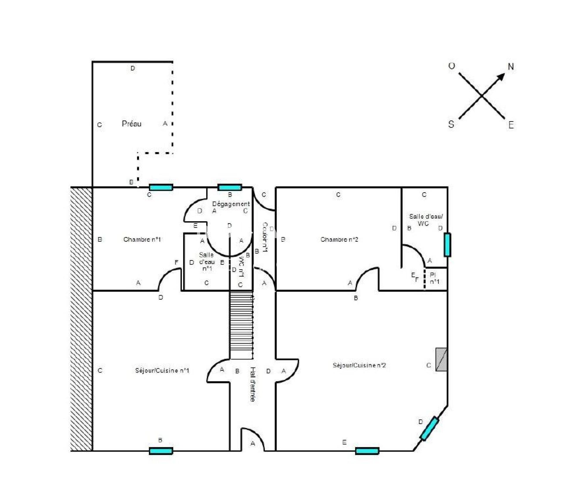
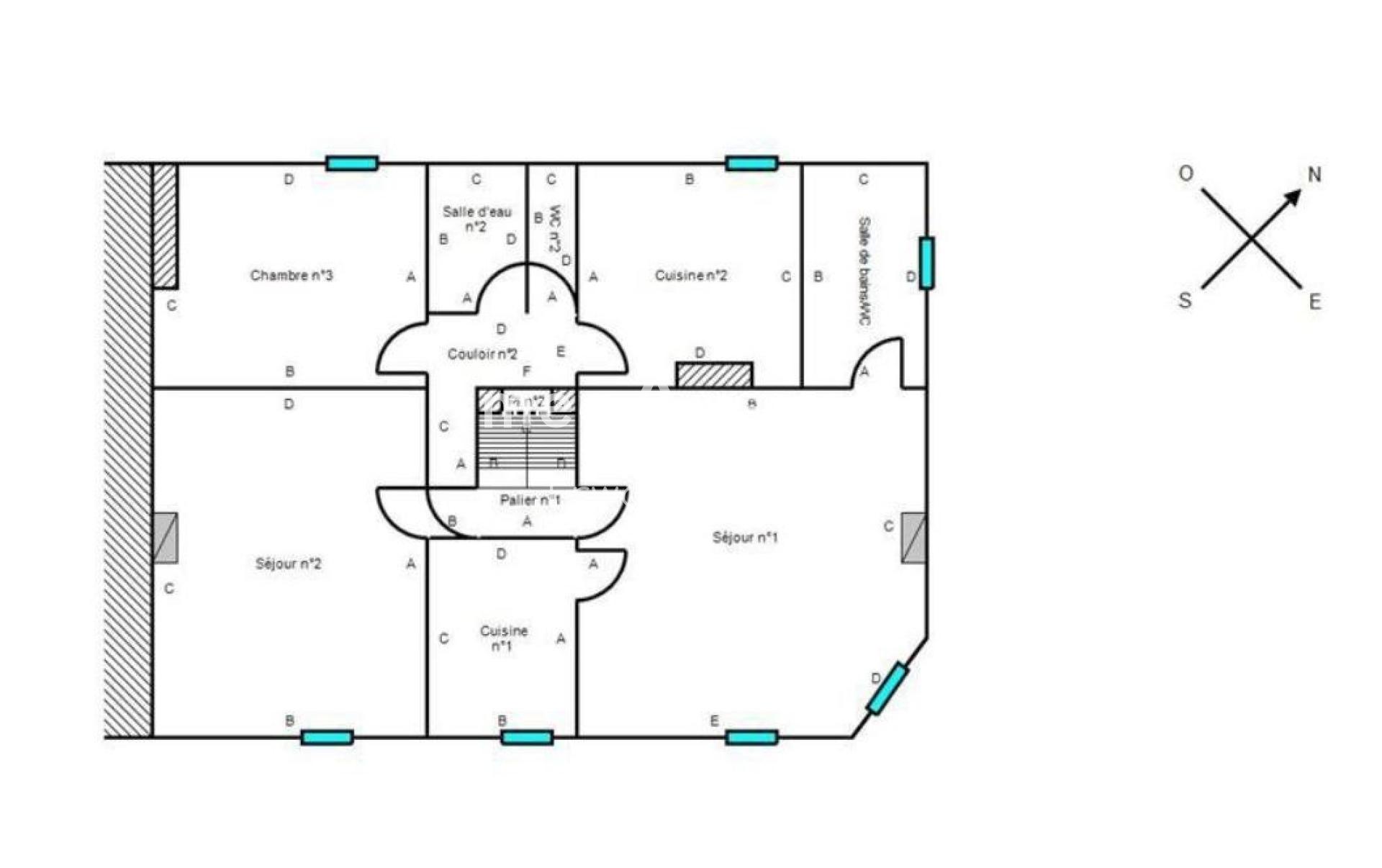
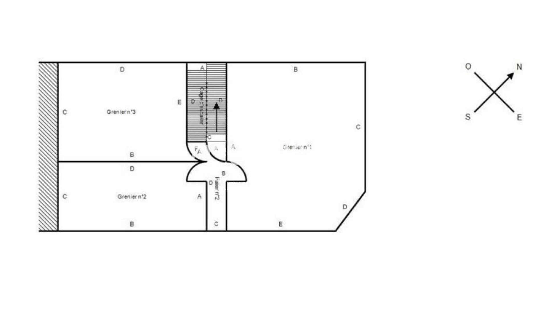
Cet immeuble de 189 m² avec une cour privative, se compose de 3 appartements T2 de 40, 43 et 44 m² habitable et de 1 appartement T1 bis de 44 m² habitable, combles aménageable en deux studio de 30 et 25m², offrant ainsi un excellent potentiel de revenu locatif. Chaque appartement bénéficie d'un agencement optimal et d'une surface habitable confortable, permettant d'assurer un bon rendement locatif ( 12 pourcent). Cet immeuble constitue une opportunité idéale pour un investissement durable dans un secteur dynamique et attractif.
Compteur électriques et eau individuels, tout à l'égout, double vitrage PVC.
Loyer de 375€ et 390€ .
Les diagnostiques seront réalisés le 27 novembre.
Les informations sur les risques auxquels ce bien est exposé sont disponibles sur le site Géorisques : www.georisques.gouv.fr
Prix de vente honoraires d'agence inclus : 169 000 €
Prix de vente hors honoraires d'agence : 160 000 €
Honoraires charge acquéreur : 9 000 € soit 5,63 % TTC de la valeur du bien hors honoraires
Contactez votre consultant megAgence : Erwan GUEGAN, Tél. : 06 31 81 61 37, E-mail : erwan.guegan@megagence.com - EI - Agent commercial immatriculé au RSAC de LORIENT sous le numéro 529 983 579
Non renseigné
- Référence : 194972
- Surface : 189m²
- Surface Terrain : 210m²
- Nombre de pièces : 5
- Nombre de niveaux : 1
- Année de construction : 1900
- Exclusivité
- Jardin
Découvrez les transports, écoles, hopitaux, commerces, services... à proximité
Notre sélection pour vous
-
Maison 5 pièces 315m²
56480 - Cleguerec Offre Immobilière Réf. 193527 Prix : 229 000 € Détail du bien -
Maison 6 pièces 118m²
56480 - Cleguerec Offre Immobilière Réf. 193189 Prix : 183 000 € Détail du bien -
Maison 8 pièces 145m²
56480 - Cleguerec Offre Immobilière Réf. 185295 Prix : 199 500 € Détail du bien -
Sous compromisMaison 6 pièces 130m²
56480 - Cleguerec Offre Immobilière Réf. 180942 Prix : 110 500 € Détail du bien