Local Commercial à TREGUIER, 22220 - 9 pièces 180m²

Immeuble- local professionnel de 180 m2, de 2005, sur le port de plaisance de Tréguier

Description du bien

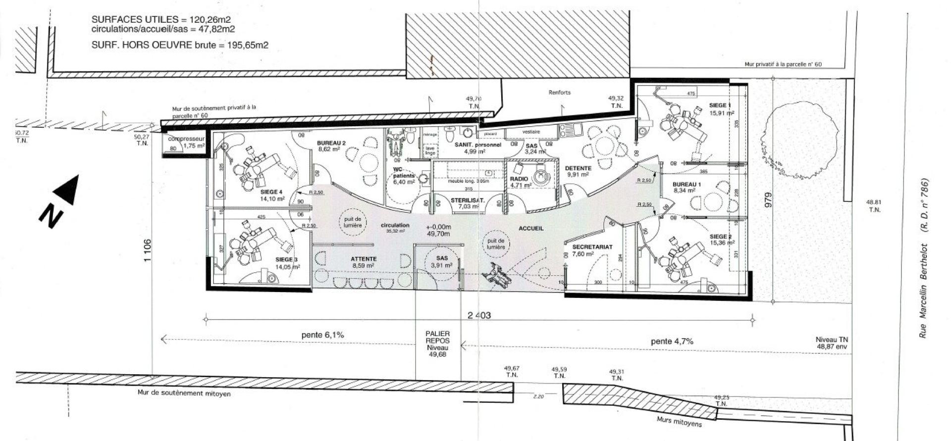
Local professionnel de 180 m2 de plain-pied, en béton banché (construction parasismique) sous membrane (toit plat), édifié en 2005, à usage de cabinets dentaire-kiné-ophtalmo jusqu'à présent (fin d'activités), situé sur le port de plaisance de Tréguier.
Disposition intérieure actuelle du bien: 5 bureaux de 8 à 13m2, une pièce lavabo + WC patientèle, une pièce de stérilisation, une pièce radiologie dentaire, une pièce rangement + WC personnel, une salle de pause avec kitchenette, deux salles de soins dentaires, et un grand espace comprenant entrée-accueil-salle d'attente et couloir de distribution.
Equipements: chauffage central total et eau sanitaire couplés à chaudière gaz à accumulation haut rendement, Vmc double flux avec gestionnaire, compresseur à air extérieur + circuits intérieurs d'air comprimé, distribution totale informatique et tv, tableau électrique protégé, assainissement collectif (tout à l'égout), borne d'entrée escamotable automatique télécommandée, accès total PMR.
Changement de destination accepté par l'urbanisme (local commercial, habitation), facilités de réaménagement intérieur (cloisons sèches, arrivées/évacuations sanitaires prévues pour salle de bain). Grand parking public gratuit à proximité immédiate. Travaux d'étanchéité à prévoir (membrane).

Les informations sur les risques auxquels ce bien est exposé sont disponibles sur le site Géorisques : www.georisques.gouv.fr

Prix de vente honoraires d’agence inclus : 325 000 € HT + 2 600 € TVA, soit 327 600 € TTC
Prix de vente hors honoraires d’agence : 312 000 € HT + 0 € TVA, soit 312 000 € TTC
Honoraires d'agence : 13 000 € HT + 2 600 € TVA, soit 15 600 € TTC (5 % TTC du prix de vente hors honoraires d'agence)
Honoraires charge acquéreur

Contactez votre consultant megAgence : Alexis TREVISAN, Tél. : 0680907054, E-mail : alexis.trevisan@megagence.com - EI - Agent commercial immatriculé au RSAC de SAINT-BRIEUC sous le numéro 518 167 721

Diagnostics de performance énergétique
Bilan énergétique
Bilan des émissions
DPE réalisé avant le 01/07/2021 selon une méthode qui ne garantit pas la même fiabilité que celle en vigueur depuis le 01/07/2021.
Caractéristiques
  • Référence : 192782
  • Surface : 180m²
  • Surface Terrain : 860m²
  • Nombre de pièces : 9
  • Nombre de niveaux : 1
  • Année de construction : 2005
  • Nombre de parkings : 4
  • Garage / Parking
  • Jardin
Autour de ce bien

Découvrez les transports, écoles, hopitaux, commerces, services... à proximité

325 000
  • TYPELocal Commercial
  • PIÈCES 9
  • CHAMBRES -
  • SURFACE180 m²
  • REF192782
VOTRE CONSULTANT MEGAGENCE
Consultant en charge
Consultant indépendant - MINIHY-TREGUIER (22220)
Ce bien vous intéresse ?